Einzelmodul Holzfassade 59m²-Satteldach
Einzelmodul Holzfassade 59m²-Satteldach
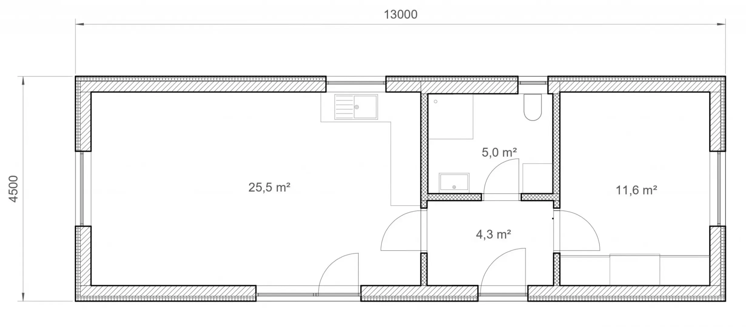
Es kombiniert ein klassisches Satteldach mit einer modernen Fassade und einer größeren Fläche von 59 m². Diese Variante ist perfekt für all jene, die eine elegante und traditionelle Architektur für ihr Büro oder ihren Wohnraum suchen.
Preisliste:
Einzelmodul Holzfassade 59m²-Satteldach
123 260 €
136 370 €
Standard Schlüsselferig
Hauptvorteile
- Aluminium-Eingangstür
- Kunststofffenster mit Dreifachverglasung
- Fermacell - zertifiziertes Brandschutzmaterial (Innenwände, Fußboden, Decke)
- Wasserbeständiges Sperrholz 15 mm im unteren Bereich des Hauses
- Luft-Luft-Wärmepumpe mit der Funktion einer Klimaanlage
- Zertifizierter nicht brennbarer Durchgang für Kaminöfen mit Versteifung für den Rauchfang (Schornstein)
- Vorbereitung für die Photovoltaik
- Durchlauferhitzer (Boiler) mit Wärmepumpe Ariston Lydos
Weitere
Vorteile
- Elektrischer Leiterheizkörper im Bad
- Keramische Wandfliesen 30 x 60 cm (Bad)
- Keramische Bodenfliesen 60 x 60 cm (Bad)
- Komplette Sanitärausstattung des Bads
- Fußbodenbelag - Laminat 10 mm
- Innentüren, einschließlich Türrahmen
- Elektroinstallion, einschließlich Revision
- Installation der Wasserleitungen und des Abflusses, einschließlich der Druckprüfungen
- Innenanstrich - weiß
- Komplette Umfassungswände, Fußboden und Decke
- Dachbelag
Sie können noch hinzukaufen
Exterieur
- Terrasse aus sibirischer Lärche
- Bioklimatische Pergola
- Carport für das Auto
- Fotovoltaikanlage, Sonnenkollektoren
- Dacheindeckung Roofclick
- Wetterdach über dem Eingang
- Holztreppe zum Haus
- Holzfassade - Nut&Feder, sibirische Lärche
- Holzfassade - Thermowood Triple
- Aluminium- oder Holzfenster
- Beschattungstechnik und Insektenschutznetze
Interieur
- Küchenzeile nach Maß inkl. Geräte
- Einbauschränke
- Falzlose Innentüren Sapeli
- Vinylbodenbelag Moduleo
- Dreischichtiger Holzfußboden
- Elektrische oder Warmwasser-Fußbodenheizung
- Kaminofen mit Rauchabzug aus Edelstahl
- Lokale/zentrale Wärmerückgewinnung
Wir bauen nach Maß
Entdecken Sie flexible Modulhäuser, die sich Ihren Vorstellungen anpassen – in Größe, Form und Ausstattung. Gemeinsam finden wir die perfekte Lösung für Ihr Projekt.
Jetzt anfragen und unverbindlich beraten lassen.










