3D model domu - Einzelmodul Holzfassade 54m²-Satteldach
Scrollen

Einzelmodul Holzfassade 54m²-Satteldach

Einzelmodul Holzfassade 54m²-Satteldach

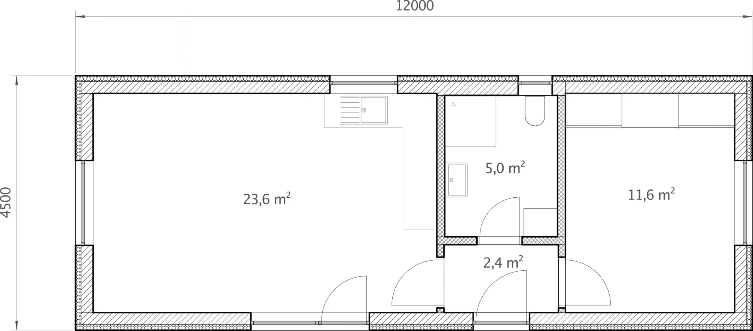
Es kombiniert ein Flachdach mit einer natürlichen Holzverkleidung, um ein rustikales und einladendes Umfeld schafft. Mit einer größeren Fläche von 54 m² ist dieses Modul ideal für Büroräume oder für ein gemütliches Wohnen mit natürlicher Atmosphäre.

Ich bin interessiert

Preisliste:
Einzelmodul Holzfassade 54m²-Satteldach

Ich bin interessiert
Zur Fertigstellung:
112 885 €
Schlüsselfertig:
124 165 €
Transport: 5 500 €
Schraubfundamente: 5 400 €
Der Preis ist ohne Mehrwertsteuer

Standard Schlüsselferig

Hauptvorteile

  • Aluminium-Eingangstür
  • Kunststofffenster mit Dreifachverglasung
  • Fermacell - zertifiziertes Brandschutzmaterial (Innenwände, Fußboden, Decke)
  • Wasserbeständiges Sperrholz 15 mm im unteren Bereich des Hauses
  • Luft-Luft-Wärmepumpe mit der Funktion einer Klimaanlage
  • Zertifizierter nicht brennbarer Durchgang für Kaminöfen mit Versteifung für den Rauchfang (Schornstein)
  • Vorbereitung für die Photovoltaik
  • Durchlauferhitzer (Boiler) mit Wärmepumpe Ariston Lydos

Weitere
Vorteile

  • Elektrischer Leiterheizkörper im Bad
  • Keramische Wandfliesen 30 x 60 cm (Bad)
  • Keramische Bodenfliesen 60 x 60 cm (Bad)
  • Komplette Sanitärausstattung des Bads
  • Fußbodenbelag - Laminat 10 mm
  • Innentüren, einschließlich Türrahmen
  • Elektroinstallion, einschließlich Revision
  • Installation der Wasserleitungen und des Abflusses, einschließlich der Druckprüfungen
  • Innenanstrich - weiß
  • Komplette Umfassungswände, Fußboden und Decke
  • Dachbelag

Sie können noch hinzukaufen

Exterieur

  • Terrasse aus sibirischer Lärche
  • Bioklimatische Pergola
  • Carport für das Auto
  • Fotovoltaikanlage, Sonnenkollektoren
  • Dacheindeckung Roofclick
  • Wetterdach über dem Eingang
  • Holztreppe zum Haus
  • Holzfassade - Nut&Feder, sibirische Lärche
  • Holzfassade - Thermowood Triple
  • Aluminium- oder Holzfenster
  • Beschattungstechnik und Insektenschutznetze

Interieur

  • Küchenzeile nach Maß inkl. Geräte
  • Einbauschränke
  • Falzlose Innentüren Sapeli
  • Vinylbodenbelag Moduleo
  • Dreischichtiger Holzfußboden
  • Elektrische oder Warmwasser-Fußbodenheizung
  • Kaminofen mit Rauchabzug aus Edelstahl
  • Lokale/zentrale Wärmerückgewinnung
Standard passt nicht?
Wir bauen nach Maß

Entdecken Sie flexible Modulhäuser, die sich Ihren Vorstellungen anpassen – in Größe, Form und Ausstattung. Gemeinsam finden wir die perfekte Lösung für Ihr Projekt.
Jetzt anfragen und unverbindlich beraten lassen.

Jetzt kontaktieren

Schraubfundamente

Hier angegebener Preis für den Schraubanker ist garantiert, wenn:

das maximale Geländegefälle an der Baustelle 150 mm nicht überschreitet, der
abgeleitete Wert aus dem Ergebnis der Boden-Zugprüfung für die vertikale
Druckbelastung 45,00 kN beträgt, kein Vorbohren des felsigen Untergrunds erforderlich ist.

Schlüsselfertig

Umfasst: Flachdach und Dachbelag, Silikonfassade, Klempner- bzw. Spenglerarbeiten, elektrische Leitungen, interne Wasserleitungen und Kanalisation, komplette Wände, Heizung, Fenster, Eingangs- und Balkontür, Fensterbänke, Innentüren, Bodenbeläge, Wandfliesen und Sanitärausstattung im Bad.

Umfasst nicht: Möbel, Küchenzeile, Geräte. Nur das Badezimmer ist ausgestattet, das eine Duschecke, ein Waschbecken, einen elektrischen Leiterheizkörper, hängendes WC, Boiler.

Zur Fertigstellung

Umfasst: Komplette Wände, Flachdach mit Dachbelag, Decke, alle Konstruktionen aus FERMACELL-Gipsfaserplatten, Silikonfassade, Fenster, Eingangs- und Balkontür, Außenfensterbänke, Elektroinstallation mit Wandsteckdosen, interne Wasserleitungen und Kanalisation, Klempner- bzw. Spenglerarbeiten. Innen FERMACELL verkittet und geschliffen, ohne Anstrich. Im Badezimmer alle Ausgänge mit Stopfen verschlossen

Nicht umfasst: Fußböden, die mit FERMACELL-Platten abgeschlossen sind, Innentüren, Innenfensterbänke, Sanitärausstattung und Wandfliesen im Bad, Heizung.